Main Street, Collooney, Co. Sligo.

Main Street, Collooney, Co. Sligo

Description

For Sale By

PUBLIC AUCTION on Friday 26th November, 2021 in The Glasshouse Hotel, Sligo at 2:30pm

 

On the instructions of the owners who are retiring from the business, we are delighted to offer for sale the above premises, located in the prominent town of Collooney, Co. Sligo located only 12km from Sligo Town and offers train & bus services.

 

The entire property is very well presented and offers an excellent opportunity for those in search of an existing business which also offers lots of potential.  Collooney with presently has only two pubs is a busy trading town and this premises is renowned as a well run premises.

 

It has OFCH, CCTV system and also alarmed.

 

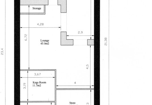
Ground floor comprise of Bar / Large Lounge Area, Kitchen, Cold Room, Cleaning Room, Ladies & Gents toilets, exit doors to the rear.  1,917 sq ft

 

Bar                              10.46 x 5.13 (41.42 m2)

Lounge                      6.72 x 4.5 (45.0 m2)

Keg Room                 3.67 x 3.19 (11.7m2)

Kitchen                      4 x 3.43 (13.8 m2)

Store Room               6.42 x 1.48 (14.2 m2)

Toilets                        3.01 x 1.5 (4.5m2)

Toilets                        3.01 x 2.76 (8.3m2)

 

 

 

1st floor comprises of large storage area and bathroom.

 

There is a rear entrance for deliveries and storage unit with a garden.

 

BER D1

 

This style property is located in is currently and has been listed on gerardclarkeproperties.com. This property is listed at . It has bedrooms, bathrooms, and is . The property was built in year.

Local area

Collooney is a small village overshadowed by the Ox Mountains just off the N4 within 8km of Sligo Town. There are many amenities within this town, pharmacy, post office, pubs, take away, grocery shop, two primary schools, play centre, playground, gym, garden centre, church, a train station and many more. Collooney has direct access to Sligo town and further afield through both bus transport and the Sligo to Dublin train. Many businesses are set up in the industrial parks including local radio stations, car sales garages and more. Local attractions in Collooney include the Collooney Mill falls where salmon fishing takes place and one can enjoy a stunning walk. Markree castle, Eagles Flying, Carrowmore Tombs, Strandhill, Knocknarea mountain and Union woods are all within easy driving distance.

Enquire now about the property